Freitag: 8 - 14 Uhr
04103 - 903 870
info@business-trading.com
Sie zahlen einfach vorab und erhalten die Ware bequem und günstig bei Zahlungseingang nach Hause geliefert.
Bezahlung per PayPal - einfach, schnell und sicher.
Zahlen Sie nach Erhalt unseres schriftlichen Rechnungsdokumentes. Eine Lieferung auf Rechnung bieten wir nur Firmen (GmbH, GmbH & Co. KG, oHG, AG oder KG), Behörden, Schulen, Konzernen und Großkunden an.
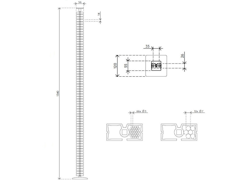
Der Dataflex Addit Kabelwurm (34.370) in weiß ist perfekt für Steh-Sitz-Schreibtische bis zu einer Höhe von 127cm geeignet. In Kombination mit dem magnetischen Montagsatz kann die Kabelorganisation problemlos an eine Metallstütze am Schreibtisch geklickt werden.
Dataflex Kabelwurm für Steh-Sitz-Arbeitsplatz in weiß 34.370
Der Dataflex Addit Kabelwurm in weiß (34.370) führt Kabel ordentlich vom Schreibtisch zum Fußboden . Dank des cleveren rechteckigen Designs verdreht sich der Kabelkanal nicht, sondern bleibt bis zum Fußboden gerade. Für zusätzliche Stabilität der Kabelführung sorgt eine beschwerte Bodenplatte.
Sicheres Kabelmanagement im Büro
Dadurch eignet sich die Kabelorganisation ausgezeichnet für Sitz-Steh Arbeitsplätz bis 127 cm Höhe. Der Addit Kabelwurm für Sitz-Stehtische sorgt für ein aufgeräumtes Bild und ein sicheres Arbeitsumfeld. In jeder Hinsicht also eine saubere Lösung.
Technische Details Dataflex Kabelorganisation für Sitz-Steh-Schreibtische
- Führt und bündelt Kabel unter dem Schreibtisch
- Länge: 1340 mm
- Farbe: weiß
- Geeignet für alle Sitz-Stehtische bis 1270 mm Höhe
- Durch Hinzufügen/Entfernen von Elementen leicht anzupassen
- Beschwerte Bodenplatte für Stabilität
- Geeignet für 12 Kabel von max. 7 mm Dicke
- Kombinierbar mit Dataflex magnetischen Montageset 34.380
- Garantie: 5 Jahre
| Produktdatenblatt: | |
|---|---|
| Technische Zeichnung: | |
| Montageanleitung: | |
| Installationsmaterial enthalten: | + |
| Garantie: | 5 Jahre |
| Diebstahlsicher: | Nein |
| Farbe: | Weiß |
Falls bei einem Produkt Warn- und Sicherheitshinweise zu beachten sind, sind diese je nach Hersteller in der jeweiligen Montageanleitung oder im Download-Bereich bei dem Hersteller zu finden (Link s.u.).
Download-Bereich - Kataloge, Flyer, Garantiebedingungen, ...
4 von 4 Bewertungen
Durchschnittliche Bewertung von 5 von 5 Sternen
5 von 5 Sternen
4 Bewertungen
12. März 2026 11:48
Bewertung mit 5 von 5 Sternen
Rundum Shop-Erlebnis, kann ich weiterempfehlen
Kompetente Beratung, fühlte mich gut betreut. Auf Anhieb funktionstüchtig – sehr praktisch.
31. Januar 2026 17:00
Bewertung mit 5 von 5 Sternen
Faire Kommunikation | alles bestens
Ganz tolles Einkaufserlebnis. Wirklich toller Online-Shop.
10. Januar 2026 15:25
Bewertung mit 5 von 5 Sternen
Absolut zufrieden: lief reibungslos
Alles lief reibungslos – klare Kaufempfehlung. Alles lief reibungslos – klare Kaufempfehlung.
15. Dezember 2025 15:58
Bewertung mit 5 von 5 Sternen
Sorgfältige Preis‑Leistung – klare Empfehlung
Alles in Ordnung – gerne wieder! Hat meine Vorstellung übertroffen – top!